The Cranwell at Spire View at Handley Chase, Sleaford
3 bedroom semi-detached | Price: From £105,750 for a 45% share | Shared Ownership up to 75%
Welcome to Spire View at Handley Chase.
We're pleased to announce The Cranwell, a three-bedroom home is now available at Handley Chase.
Beautifully designed homes set in Lincolnshire’s open countryside, with green spaces and scenic walks on your doorstep. Modern living meets rural charm, with shops, schools and excellent connections just minutes away.
Built by Bellway, this development is situated in the market town of Sleaford - making it the perfect place to call home.​
Please register your interest to be the first to find out more about the exciting new Handley Chase, Sleaford.
Key features
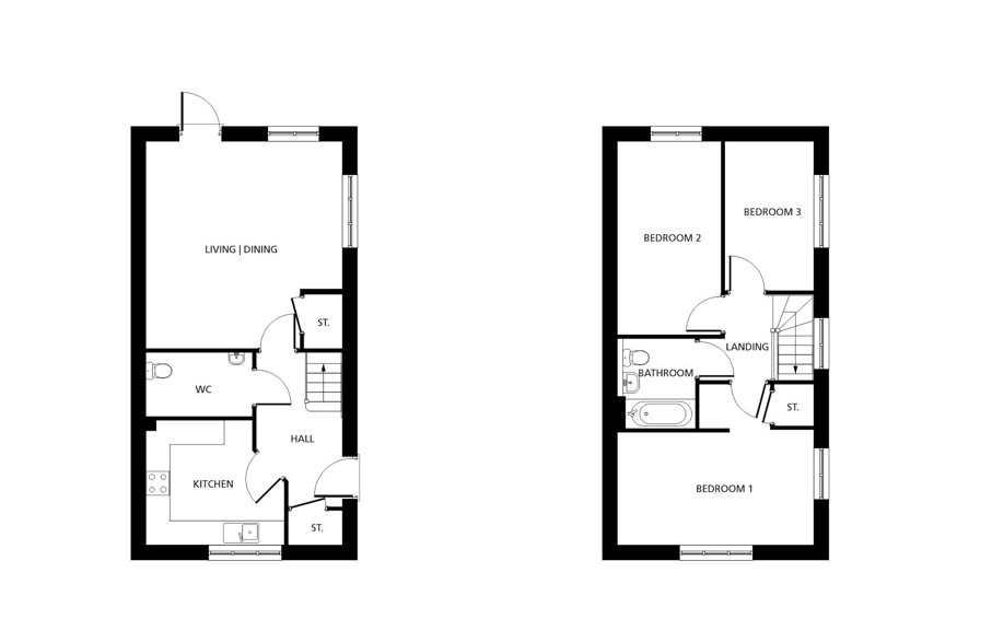
The front door of this home opens into the hall and from there is the the modern kitchen, which has a built-in oven, hob and hood. Further down the hall is the living/dining room, which has a door that leads out to the rear enclosed garden, which will be freshly turfed. The ground floor also boasts a downstairs WC.Â
The first floor has three bedrooms and a family bathroom fitted with a modern three-piece suite.Â
This brand new home also benefits from gas central heating and uPVC double glazing.
The property has two allocated parking spaces.
Ownership options to suit you.
The new-build homes on this development will be available as Shared Ownership.
PricesÂ
Shares will be available from 25% to 75%.
Example
45% share value
£105,750 and monthly rent of £340.59*
*Rental figure includes buildings insurance and management company charges.
Ground floor
| Room | Metric | Imperial |
|---|---|---|
| Kitchen | 3.36m x 3.05m | 11' 0" x 10' 0" |
| Living/dining room | 4.85m x 5.05m | 15' 9" x 16' 6" |
| Room | Metric | Imperial |
|---|---|---|
| Bedroom one | 4.85m x 3.95m | 15' 9" x 13' 0" |
| Bedroom two | 2.60m x 4.72m | 8' 5" x 15' 5" |
| Bedroom three | 2.19m x 3.64m | 7' 2" x 11' 9" |


Our commitment to you
Before you move
- Our friendly sales team will provide you with support and guidance throughout the home buying process
- At pre-reservation stage you will be shown details of the appearance and location of your chosen new home, together with all relevant surrounding information
- The reservation agreement will set out the key terms of your home purchase, including the reservation period, purchase price and other important information
- We will go through the specification and layout of your home and details of any pre-contractual information to enable you to make an informed decision
- We will inform you of your main point of contact who will assist you with information during your reservation and after you have moved into your new home
- We will regularly communicate with you to keep you informed of the progress of your new home and your dedicated point of contact will respond to any queries you may have
- We want to make your move as enjoyable as possible and our welcoming and knowledgeable staff will be with you every step of the way to provide a service that is tailored to you and your needs.
When/after you move in
- On the day you move a dedicated sales advisor will welcome you to your new home
- A detailed homecare booklet will be provided to help you settle in
- Shortly after you have moved in, we will make courtesy calls/visits to ensure you are happy with your new surroundings
- Your new home is covered by an NHBC or similar industry regulated 10-year insurance scheme covering the fabric and structural integrity of your new home.
Shared Ownership is a government-backed scheme that helps you get onto the property ladder if you can’t afford to buy a home outright on the open market.
With Shared Ownership, you buy a share of your home and pay an affordable rent on the remaining share, making home ownership more accessible with a smaller deposit and mortgage. Over time, you can usually buy more shares in your home, increasing your ownership, through a process called staircasing.
Watch the video below to learn how the Shared Ownership scheme works and whether it could be right for you.
You can buy a home through shared ownership if both of the following are true:
- your household income is £80,000 a year or less (£90,000 a year or less in London)
- you cannot afford all of the deposit and mortgage payments for a home that meets your needs
One of the following must also be true:
- you’re a first-time buyer
- you used to own a home but cannot afford to buy one now
- you’re forming a new household - for example, after a relationship breakdown
- you’re an existing shared owner, and you want to move
- you own a home and want to move but cannot afford a new home that meets your needs
- For some homes you may have to show that you live in, work in, or have a connection to the area where you want to buy the home.